There’s a reason single-story homes have stood the test of time. They’re practical, efficient, and when done right, they simply live better. The Sienna is a strong example of that approach—thoughtfully designed, well-balanced, and built for how people actually use their homes today.

At just over 3,800 square feet, this plan delivers space where it matters without feeling oversized or wasteful. It’s a layout that respects traditional principles—clear separation of private and shared spaces—while still embracing the openness buyers expect today.
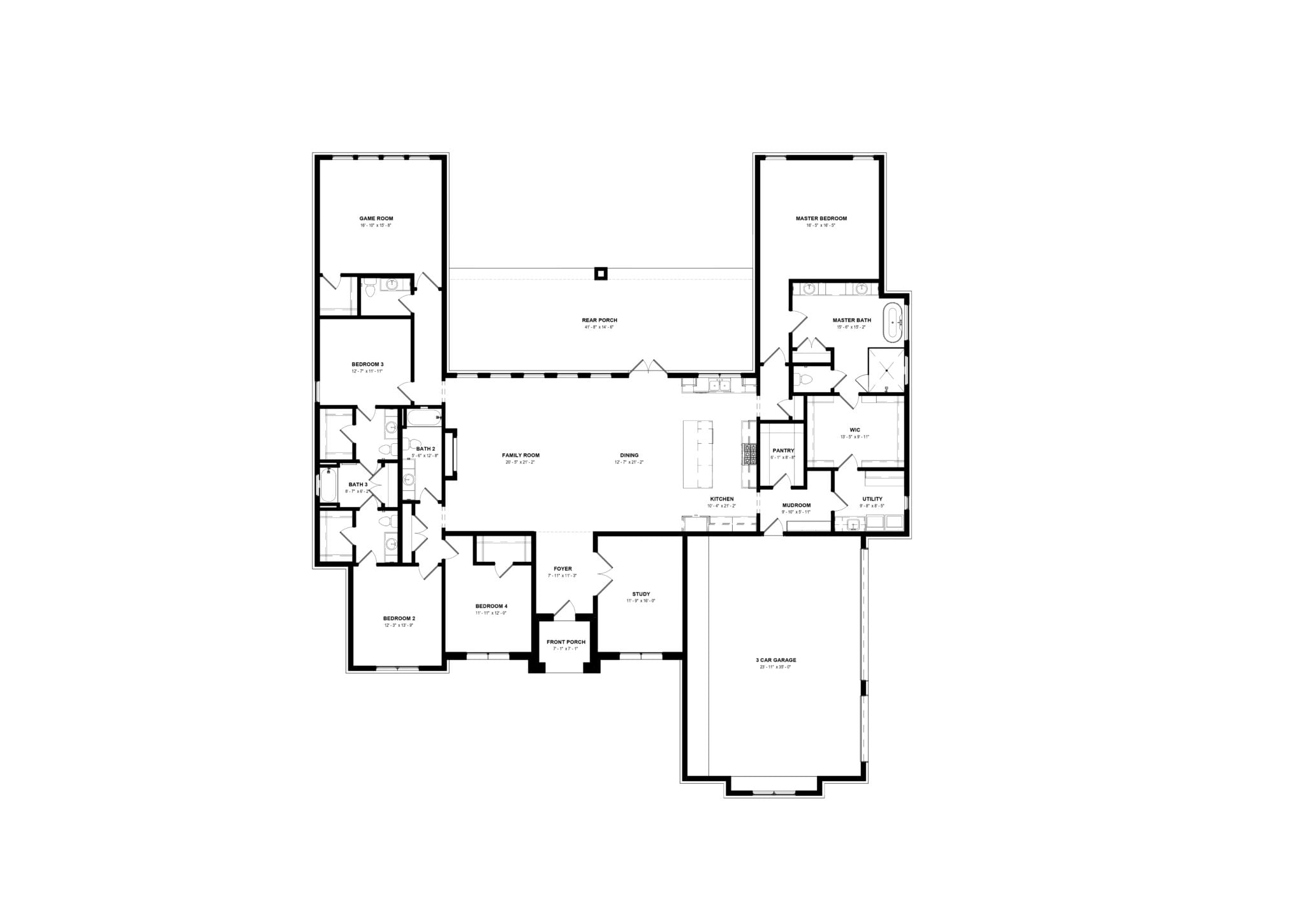
A Layout That Works From Day One
The heart of the Sienna is exactly where it should be—the central living area. The family room, kitchen, and dining space are all connected, creating a natural gathering point for everyday life.
From the moment you walk through the front door, the layout makes sense. There’s no confusion, no wasted hallway space, and no unnecessary complexity. Just a clean, functional flow that feels right.
The rear porch extends the living space even further, making it easy to transition outdoors for entertaining or quiet evenings at home.
Private Spaces Where They Belong
One of the strongest features of this plan is how it handles privacy.
The primary suite is set apart from the secondary bedrooms, giving homeowners a true retreat. It’s positioned for quiet, with convenient access to the utility and mudroom areas—something that often gets overlooked but makes a real difference in day-to-day living.
On the opposite side of the home, secondary bedrooms are grouped together with easy access to bathrooms. It’s a practical setup for families, guests, or even multi-generational living.
Purpose-Driven Rooms That Add Value
The Sienna doesn’t rely on gimmicks. Every space has a purpose.
- A dedicated study near the front of the home provides a quiet workspace.
- The game room offers flexibility—whether it’s for entertaining, hobbies, or a second living area.
- A true mudroom and utility space help keep the home organized and functional.
These are the kinds of features that don’t just look good on paper—they improve how the home performs over time.
Built for Today, Designed to Last
This is where experience shows.
The Sienna isn’t chasing trends. It’s built on a foundation of what has always worked—strong layout, balanced proportions, and practical design decisions. At the same time, it leaves room for customization, whether that’s through finishes, structural changes, or upgraded building methods like ICF construction for durability and efficiency.
The Bottom Line
The Sienna is a straightforward, well-executed plan. It respects traditional home design while meeting modern expectations. No wasted space. No overcomplication. Just a home that works.
If you’re looking for a single-story layout that delivers both function and flexibility, this is one worth serious consideration.
Ready to Take the Next Step?
The Sienna is more than a new plan. It is a solid foundation for building a home that fits your life, your land, and your long-term goals. If you are looking for a luxury single-story home that delivers both function and lasting value, this is a plan worth exploring further.
At Design Tech Homes, we do not believe in one-size-fits-all. Every home we build is shaped around the homeowner, and our team is here to guide you through that process from start to finish.
You can explore more customizable layouts in our Plans Your Way collection:
Plans Your Way
If you are ready to start designing your home or want to walk through what is possible with the Sienna, schedule a conversation with our team:
Schedule a Consultation
Or take a closer look at how we build on your lot across the Greater Houston area:
Build Your Custom Home on Your Land in Greater Houston
The right home starts with the right plan. Let’s build it the right way.